 |
 |
Los Arcos Building at Epicenter, an office community in west El Paso, Texas
With spaces available from 300 to 12,000 sq. ft., the Los Arcos Building is part of Epicenter, a 17 building 450,000 square foot Class A office/business complex located on a 25 acre campus in west El Paso, Texas. The institutional-quality business park is located on the west side of El Paso in the city's most prestigious and convenient location, along Mesa Street and Interstate 10 at Executive Center Boulevard.
|
 |

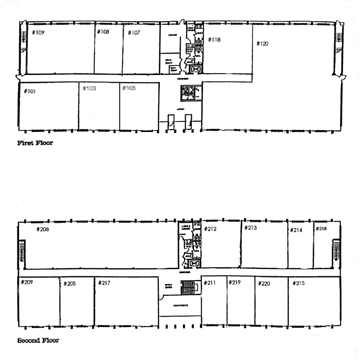
Los Arcos Building
4141 Pinnacle St.
El Paso, Texas 79902
- Building Specifications:
- Two story office building with 23,628 sq. ft. of useable
office space
- Beautifully maintained landscaping
- All inclusive utilities
- HUB Zone certified for tenants with government clients
- Ample Parking: Remember FREE Parking
- 4 spaces per 1,000 sq. ft.
- Signage:
- Directory and suite signage provided
- Additional signage available for a tenant 5,000 sq. ft. or greater (subject to review)
- Janitorial Service:
- General cleaning and trash removal available 5 nights a week
- Heating & Cooling:
- State of the art, computerized heating (gas) and cooling (refrigerated) systems controlled by management office in most buildings at a comfortable setting
- On-Site Property Management & On-Site Maintenance:
- Full staff of qualified professional personnel to maintain the interior and exterior areas of the business park
- 24 hour answering service available during non-business hours for emergencies
Leasing and Management Office
444 Executive Center Blvd., Ste. 120
El Paso, Texas 79902
Phone: (915) 532-3456
Fax: (915) 532-3458
E-mail: |

 |
 |


|
|
|
 |
Industrial, retail, medical, office space, hotels and land for lease in El Paso, Texas
|
|