Shalom Group real estate

Chaparral Building at Epicenter, an office community in west El Paso, Texas

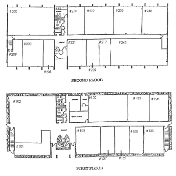
With spaces available from 300 to 12,000 sq. ft., the Chaparral Building is part of Epicenter, a 17 building 450,000 square foot Class A office/business complex located on a 25 acre campus in west El Paso, Texas. The institutional-quality business park is located on the west side of El Paso in the city's most prestigious and convenient location, along Mesa Street and Interstate 10 at Executive Center Boulevard.


Chaparral Building
4150 Rio Bravo Dr.
El Paso, Texas 79902

  • Building Specifications:
    • Two story office building with 22,855 sq. ft. of useable office space
    • Beautifully maintained landscaping
    • All inclusive utilities
    • HUB Zone certified for tenants with government clients
  • Ample Parking: Remember FREE Parking
    • 4 spaces per 1,000 sq. ft.
  • Signage:
    • Directory and suite signage provided
    • Additional signage available for a tenant 5,000 sq. ft. or greater (subject to review)
  • Janitorial Service:
    • General cleaning and trash removal available 5 nights a week
  • Heating & Cooling:
    • State of the art, computerized heating (gas) and cooling (refrigerated) systems controlled by management office in most buildings at a comfortable setting
  • On-Site Property Management & On-Site Maintenance:
    • Full staff of qualified professional personnel to maintain the interior and exterior areas of the business park
    • 24 hour answering service available during non-business hours for emergencies

Leasing and Management Office
444 Executive Center Blvd., Ste. 120
El Paso, Texas 79902
Phone: (915) 532-3456
Fax: (915) 532-3458
E-mail:

Chaparral Building in El Paso

Available office space in El Paso


Industrial, retail, medical, office space, hotels and land for lease in El Paso, Texas